ANA
title
Sporthalle Ostermundigen
date
2023
place
Ostermundigen (CH)
medium
Competition
close

Wie können wir den negativen Einfluss eines Neubaus auf das Klima möglichst stark reduzieren? Womöglich wäre die konsequenteste Antwort: nicht bauen. Dieses Projekt versucht dennoch das geforderte Programm umzusetzen – mit möglichst kleinem Fussabdruck und minimaler versiegelter Bodenfläche.

How can the negative impact of a new building on the climate be minimized? The most consequential answer might be: don’t build. This project attempts nonetheless to fulfill the required program – with the smallest possible footprint and minimal ground sealing.

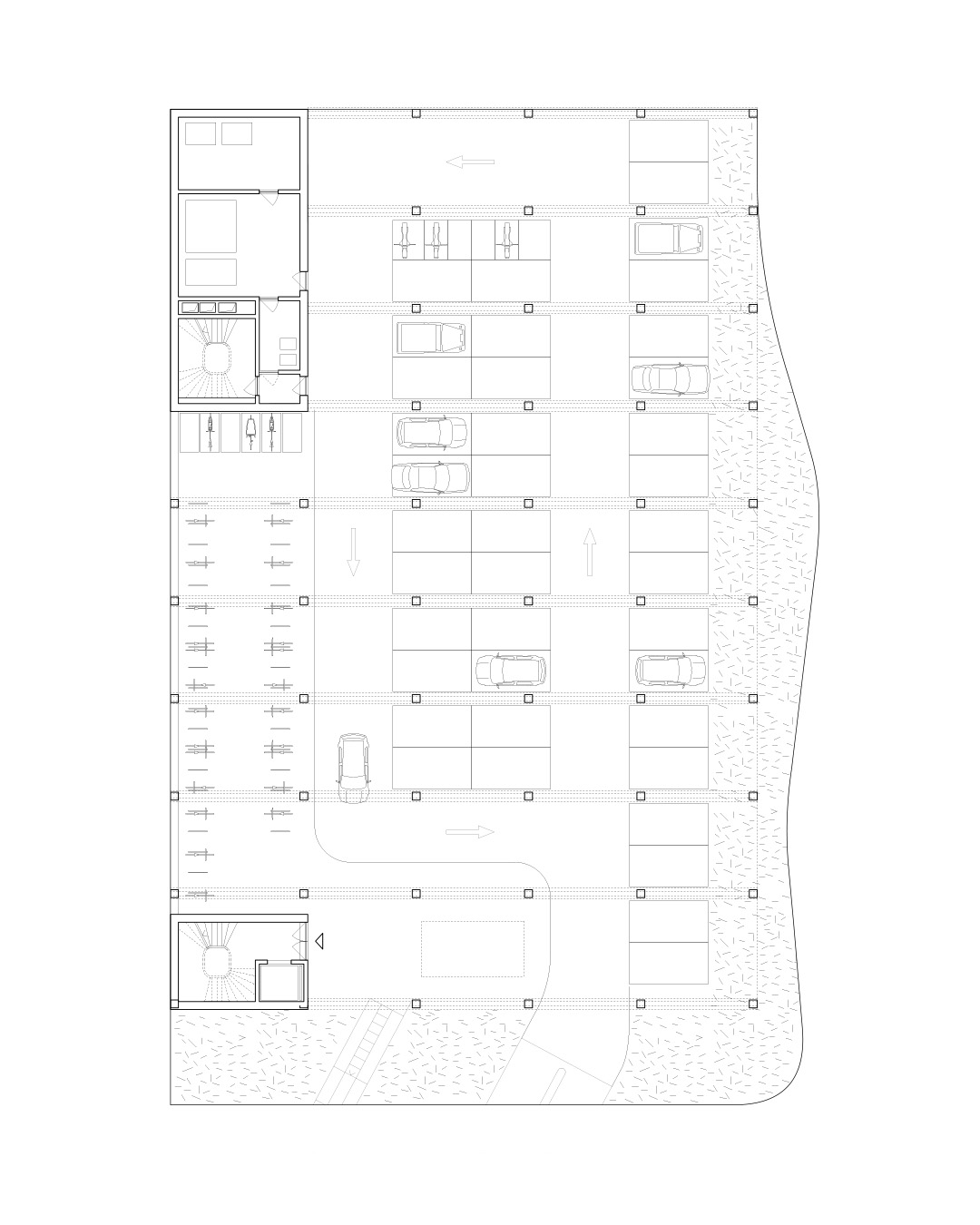
Die gesamte Turnhalle steht auf Stützen und ruht auf Punktfundamenten. Die Parkplätze und Technikräume sind im offenen Souterrain untergebracht. Die Halle selbst liegt aufgeständert auf 2m über Bodenniveau. Die Funktionsräume sind L-förmig um die Halle angeordnet; Umkleiden und Nasszellen befinden sich im Obergeschoss, wo der Erschliessungsbereich zum Zuschauer*innenbereich wird.

Der Projektperimeter liegt an einer Achse wichtiger Naturräume. Ziel der Landschaftsgestaltung ist es, den Perimeter wieder in die bestehende Kulturlandschaft einzubetten, Biodiversität zu fördern und versiegelte Flächen zu minimieren. Die Umgebung ist als aktive Landschaft mit informellen Bewegungs- und Sportmöglichkeiten gestaltet; Dachflächen werden mit extensiver Begrünung und Photovoltaik aktiviert. Ein baumüberstandener Vorplatz bildet den Auftakt, ein chaussierter Weg entlang des Ackers verbindet zur Kletterhalle.

The entire gymnasium is raised on columns, resting on point foundations only. Parking and technical rooms are accommodated in the open lower level. The hall itself sits 2m above grade, with ancillary spaces arranged in an L-shape around it. Changing rooms and wet areas are on the upper floor, where the circulation zone doubles as spectator space.

The site sits along an axis of significant natural spaces. The landscape design aims to re-embed the site into the surrounding cultural landscape, strengthen biodiversity, and minimize sealed surfaces. The grounds are conceived as an active landscape with informal recreational and sports opportunities; roof surfaces are activated with extensive green roofing and photovoltaics. A tree-lined forecourt forms the public arrival space; a path along the fields connects to the adjacent climbing hall.

Das kompakte Volumen wirkt durch die Aufständerung leicht und dockt als eigenständiger Baukörper an die projek­tierte Kletterhalle an. Die Fassade gliedert sich in drei horizontale Schichten: offene Garage, grosszügig verglaste Hallenebene und ein skulpturales Dach mit hinterlüfteter Hanffaser-Wellplatte.

Das Tragwerk ist konsequent als Holzbau konzipiert – von den Beton-Punktfundamenten bis zum Dach. Die thermische Hülle erfüllt den Minergie-Eco-A-Standard; die Photovoltaikanlage macht die Halle zum Plusenergiegebäude. Eine Kaskadenlüftung nutzt die eingeblasene Luft effizient durch mehrere Raumschichten. Der Brandschutz ist weitgehend baulich gelöst: Das Gebäude wird über zwei Treppenhäuser entfluchtet, das offene Parking natürlich entraucht.

The compact volume reads as light due to its elevation, connecting as a formally distinct structure to the projected climbing hall. The facade is organized in three horizontal layers: open garage, a generously glazed hall level, and a sculptural roof clad in pigmented hemp-fiber corrugated panels.

The structural system is conceived consistently as timber construction – from the concrete point foundations to the roof. The thermal envelope meets Minergie-Eco-A standard; photovoltaics on the green roof make the building net-positive in energy. A cascade ventilation system efficiently routes air through multiple spatial layers. Fire safety is resolved architecturally: the building evacuates via two stairwells, the open parking garage naturally ventilated and directly accessible for evacuation.

team
Lukas Fink, Tobias Fink
structural engineers
Pirmin Jung
landscape
KollektivLand
hlkse
Wirkungsgrad Ingenieure